- Woonoppervlakte
- Circa 430 m²
- Perceeloppervlakte
- Circa 2.990 m²
- Bouwjaar
- Gebouwd in 1914
- Aantal kamers
- 14 kamers (13 slaapkamers)
De Parel van Balgoij
Wonen met geschiedenis, ruimte en grandeur
Aan een rustige weg, verscholen in het landelijke groen van Balgoij, staat een object dat zelden beschikbaar komt. Een huis met een rijke geschiedenis. Het voormalige parochiehuis ‘De Parel’, gebouwd in 1914 en aangemerkt als gemeentelijk monument vormt een indrukwekkend en karaktervol geheel op een royaal perceel van 2.990 m².
Vrijstaand, met vrij uitzicht en omgeven door rust en groen, biedt dit bijzondere pand een uitzonderlijke combinatie van historie, ruimte en veelzijdigheid. Een plek waar het verleden voelbaar is, zonder concessies te doen aan comfort en gebruiksmogelijkheden van vandaag.
Een gebouw met betekenis
Vanaf het eerste aanzicht maakt ‘De Parel’ indruk. De statige architectuur, het siermetselwerk en de monumentale uitstraling verraden direct de oorspronkelijke functie van het pand. Binnen zet deze beleving zich voort: hoge plafonds, glas-in-lood boogramen, schouwen en authentieke materialen zorgen voor een warme en tegelijk imposante sfeer.
Met een woonoppervlakte van circa 430 m² en een inhoud van bijna 1.750 m³ biedt deze woning ongekende ruimte. De indeling is royaal en doordacht, waardoor het huis zich leent voor uiteenlopende woonvormen: royaal gezinsleven, werken of praktijk aan huis, meer-generatie wonen of een combinatie hiervan.
Begane grond – een indrukwekkende ontvangst
Via de entree met overkapping betreedt u de woning. In de hal trekken de originele vloertegels en karakteristieke voordeur direct de aandacht. Vanuit hier ontvouwt zich het hart van het huis: de centrale hal.
Deze indrukwekkende ruimte is zonder twijfel een van de absolute hoogtepunten van de woning. Het metershoge plafond, de fraaie glas-in-lood boogramen en het siermetselwerk geven de hal een statige grandeur. Van hieruit heeft u toegang tot de verschillende woon- en slaapvertrekken op de begane grond.
De sfeervolle woonkamer ademt karakter en warmte, met een fraaie schouw en houtkachel, hoge sierplafonds en prachtig lichtinval. Via een brede schuifpui staat deze ruimte in directe verbinding met de royale serre, momenteel in gebruik als speelkamer en kantoor, met rondom vrij uitzicht over het omliggende groen.
De leefkeuken vormt een volwaardige woonruimte op zich: licht, ruim en praktisch ingericht met een 6-pits gasfornuis met oven, vaatwasser, Quooker en combimagnetron. Ook hier zorgt een schouw met houtkachel voor extra sfeer. Vanuit de keuken bereikt u direct het buitenterras en de tuin op het zuiden, waardoor binnen en buiten moeiteloos in elkaar overlopen.
Op de begane grond bevinden zich daarnaast meerdere slaapkamers, badkamers en bij-ruimtes, waaronder een bijkeuken met was voorzieningen, extra doucheruimte en een separate trapopgang. Dit maakt gelijkvloers wonen of een combinatie van wonen en werken uitstekend mogelijk.
Eerste verdieping – ruimte en privacy
De eerste verdieping biedt een uitzonderlijk aantal vertrekken, verdeeld over meerdere gangen en niveaus. Hier bevinden zich diverse royale slaapkamers, meerdere badkamers en praktische inbouwkasten.
De master bedroom aan de achterzijde is bijzonder ruim en beschikt over een walk-in-closet en directe toegang tot een luxe badkamer met inloopdouche, toilet en wastafel.
Aan de voorzijde en in de zijvleugels bevinden zich meerdere slaapkamers, elk met hun eigen karakter, lichtinval en opbergruimte.
In totaal telt de woning vijf badkamers/douches, wat het huis uitermate geschikt maakt voor grote gezelschappen of multifunctioneel gebruik.
Tweede verdieping
Ook de tweede verdieping is volwaardig benut en biedt plaats aan twee extra slaapkamers met dakramen. Ideaal als logeerkamers, hobbyruimte of werkplek in alle rust.
Kelder – bijgebouwen
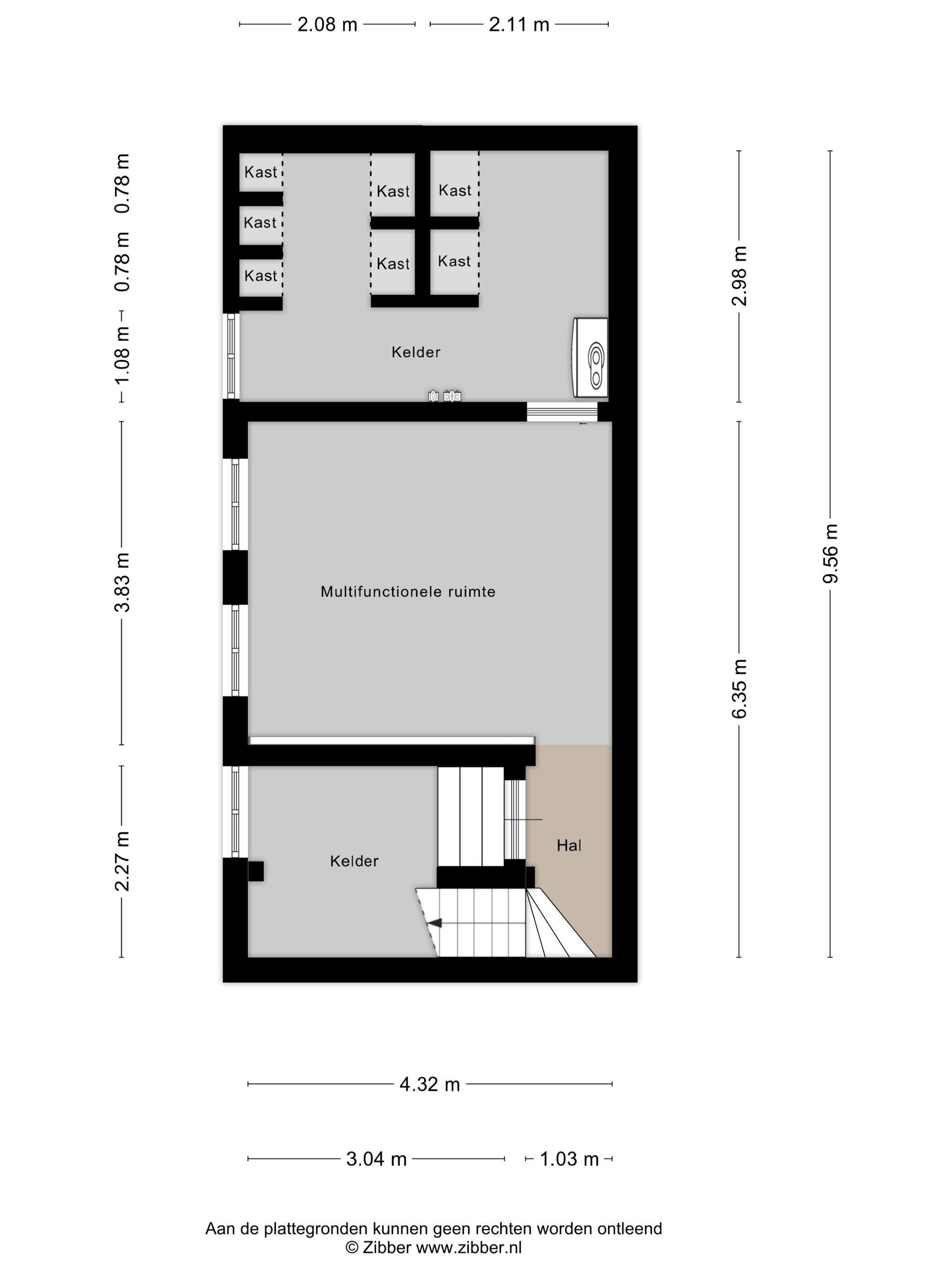
Onder het huis bevindt zich een ruime kelder van circa 9,56 x 4,32 meter, met een multifunctionele ruimte, met lichtinval van buiten, twee kelders waarvan één voorzien van vaste opbergruimte en de cv-installatie.
Op het perceel bevinden zich twee vrijstaande bijgebouwen. Het eerste bijgebouw beschikt over een sfeervolle overkapping met zitgedeelte, twee ruime bergingen en extra overdekte opslag.
Achter in de tuin staat een tweede bijgebouw met een kantoorruimte en twee separate bergingen, allen met dubbele deuren, eveneens voorzien van een overkapping. Perfect voor opslag, hobby’s of het stallen van tuinmateriaal.
Buitenleven – rust, ruimte en privacy
De tuin is rondom de woning gelegen en zorgvuldig aangelegd.
Via de ruime oprit met siergrind omgeven door borders met volwassen bomen, vaste planten en heesters bereikt u de woning.
Aan de voorzijde ligt een ruim gazon dat tevens dienst kan doen als speelveld, omzoomd door een groene haag.
Direct aansluitend aan de woning bevindt zich een royaal beklinkerd terras met uitzicht op de vijver en het eerste bijgebouw.
De achtertuin vormt een natuurlijke voortzetting van het groen, met volop privacy en een serene sfeer.
Balgoij en omgeving – landelijk wonen met alle voorzieningen dichtbij
Balgoij is een charmant en gemoedelijk dorp, gelegen in het groene buitengebied van de gemeente Wijchen. Hier woont u in alle rust, omgeven door landerijen en natuur, met een sterk dorps karakter en een hechte gemeenschap. De landelijke sfeer, het vrije uitzicht en de kleinschaligheid maken Balgoij tot een geliefde woonplek voor wie ruimte en ontspanning zoekt, zonder zich af te sluiten van het dagelijkse leven.
Voor de dagelijkse voorzieningen ligt het moderne winkelcentrum Zuiderpoort op korte afstand. Hier vindt u een compleet aanbod aan winkels, supermarkten en voorzieningen voor de dagelijkse boodschappen, overzichtelijk en ruim opgezet, met goede parkeermogelijkheden. Praktisch en comfortabel, zonder de drukte van een grootstedelijk winkelgebied.
Het centrum van Wijchen bevindt zich eveneens nabij en biedt een sfeervol en levendig dorpshart met een uitgebreid winkelaanbod, gezellige horecagelegenheden, terrassen en culturele voorzieningen. Het historische karakter van Wijchen, gecombineerd met eigentijdse voorzieningen, zorgt voor een aangename balans tussen dorpse charme en stedelijk comfort. Ook het NS-station, scholen en sportfaciliteiten zijn hier ruimschoots aanwezig.
Dankzij de gunstige ligging zijn omliggende plaatsen en steden zoals Nijmegen eenvoudig bereikbaar, terwijl u thuis geniet van de rust, ruimte en privacy die het buitengebied van Balgoij te bieden heeft. Een zeldzame combinatie van landelijk wonen en een uitstekend voorzieningenniveau.
Een unieke kans
‘De Parel’ is meer dan een woning. Het is een plek met geschiedenis, karakter en uitzonderlijke ruimte, gelegen in een rustige en groene omgeving.
Een huis voor liefhebbers van authenticiteit, grandeur en vrijheid.
Wij nodigen u graag uit om deze bijzondere plek zelf te ervaren.
Bijzonderheden
- Energielabel: E
- Isolatie: Dakisolatie
- Kozijnen: Hout en kunststof
- Beglazing: Gedeeltelijk dubbelglas en voorzetramen
- Cv-installatie: Nefit 2022
- Kachel: 2x Hout gestookt
- Keuken: bouwjaar 2009
- Badkamer: bouwjaar 2008 en 2020
- Kelder: afmeting 9.56 x 4.32 m
- Vloeren: Begane grond hout en beton, verdiepingsvloeren van hout
- Kruipruimte: In de kelder. Aanwezig maar onder de woning niet toegankelijk
- Schilderwerk buiten: juni 2020
- Parkeergelegenheid: Openbaar en op eigen terrein voor meerdere auto’s Lees de volledige omschrijving
Overdracht
- Vraagprijs
- € 950.000 k.k.
- Status
- Verkocht onder voorbehoud
- Aanvaarding
- In overleg
Bouw
- Object type
- Villa, vrijstaande woning
- Soort bouw
- Bestaande bouw
- Bouwjaar
- 1914
- Soort dak
- Samengesteld dak bedekt met bitumineuze dakbedekking en pannen
Oppervlakte en inhoud
- Woonoppervlakte
- 430 m²
- Perceeloppervlakte
- 2.990 m²
- Inhoud
- 1.749 m³
- Externe bergruimte
- 65 m²
- Gebouwgeb. buitenruimte
- 48 m²
Indeling
- Aantal kamers
- 14 kamers (13 slaapkamers)
- Aantal badkamers
- 5 badkamers en 2 aparte toiletten
- Badkamervoorzieningen
- 3 douches, 4 wastafels, 2 inloopdouches, en 2 toiletten
- Aantal woonlagen
- 3 woonlagen en een kelder
Energie
- Energielabel
- E
- Energielabel registratie
- 17-02-2025
- Isolatie
- Dakisolatie
- Verwarming
- Cv-ketel en houtkachel
- Warm water
- Cv-ketel
- Cv ketel
- Nefit (gas gestookt combiketel uit 2022, eigendom)
Buitenruimte
- Ligging
- Aan rustige weg, open ligging en vrij uitzicht
- Tuin
- Achtertuin, tuin rondom, voortuin en zijtuin
Bergruimte
- Schuur / berging
- Vrijstaande houten berging
Parkeergelegenheid
- Soort parkeergelegenheid
- Op eigen terrein en openbaar parkeren
Energieverbruik in Balgoij
Energielabel deze woning
Energielabel E
Publicatie energielabel: 17-02-2025
Stroomverbruik per jaar
(Gemiddelde vrijstaande woning in Balgoij)
Gasverbruik per jaar
(Gemiddelde vrijstaande woning in Balgoij)
* Cijfers zijn afkomstig van het CBS en bedoeld als indicatie en kunnen verschillen voor deze woning
Indicatie hypotheeklasten
Eigen inleg:
Spaargeld / overwaarde
Rente:
Laagste 10-jaars rente
Laagste 10-jaars rente
2,78% - Centraal Beheer - NHG
3,04% - Centraal Beheer - 80%
Laagste 20-jaars rente
3,29% - Centraal Beheer - NHG
3,52% - Centraal Beheer - 80%
Laagste 30-jaars rente
3,41% - Centraal Beheer - NHG
3,7% - Argenta - 80%
Hypotheek:
Bruto maandlasten: € 0 p/m
Netto maandlasten: € 0 p/m
Hoe berekenen we dit?
Het rentepercentage is gebaseerd op de laagste 10 jaars vaste rente voor één hypotheekdeel. De vermelde rente (3.04% zonder NHG) is gecontroleerd op 10-05-2026. Deze berekening is gebaseerd op een annuïteitenhypotheek die volledig wordt afgelost, waarbij de maandlasten gedurende de gehele looptijd gelijk blijven. De werkelijke rente en netto maandlasten kunnen variëren, afhankelijk van uw persoonlijke situatie en de hypotheekverstrekker. Raadpleeg een financieel adviseur voor een nauwkeurige berekening en advies. Aan deze berekening kunnen geen rechten worden ontleend; het dient enkel als indicatie.
Documentatie
Kadastrale kaart
Leefomgeving
Plattegronden PDF
WOZ waarderapport
BAG uittreksel
13-02-2026-brochure-boomsestraat-2-a-balgoij
Brochure
Bezichtiging
Waardebepaling
Zoekopdracht
Alles downloaden
Zonnegrenzen bekijken
Op de kaart
Inwoners in Balgoij
Cijfers voor postcodegebied 6613
- Totaal aantal inwoners
- 720 inwoners
- Mannen
- 53%
- Vrouwen
- 47%
Inwoners in Balgoij
Cijfers voor postcodegebied 6613
- tot 15 jaar
- 16%
- 15 tot 25 jaar
- 14%
- 25 tot 35 jaar
- 16%
- 45 tot 65 jaar
- 38%
- 65 en ouder
- 17%
Huishoudens in Balgoij
Cijfers voor postcodegebied 6613
- Eenpersoons zonder kinderen
- 19%
- Meerpersoons zonder kinderen
- 30%
- Huishoudens zonder kinderen
- 49%
Huishoudens in Balgoij
Cijfers voor postcodegebied 6613
- Huishoudens met één kind
- 6%
- Huishoudens met meerdere kinderen
- 45%
- Huishoudens met kinderen
- 51%
Woningen in Balgoij
Cijfers voor postcodegebied 6613
- Woningen voor 1945
- 30%
- Woningen tussen 1945 en 1965
- 7%
- Woningen tussen 1965 en 1975
- 15%
- Woningen tussen 1975 en 1985
- 11%
- Woningen tussen 1985 en 1995
- 19%
Woningen in Balgoij
Cijfers voor postcodegebied 6613
- Woningen tussen 1995 en 2005
- 11%
- Woningen tussen 2005 en 2015
- 2%
- Woningen na 2015
- 4%
- Huurwoningen
- 10%
- Koopwoningen
- 90%
Overige in Balgoij
Cijfers voor postcodegebied 6613
- Gemiddelde WOZ waarde
- € 352.000,-
- Personen onder de 65 met uitkering
- 5%
Overige in Balgoij
Cijfers voor postcodegebied 6613
- Adressen per km²
- 111
- Stedelijkheid (schaal 1 op 5)
- 20%
HW Makelaardij Wijchen
Indien u vragen heeft of u wilt een bezichtiging inplannen, dan kunt u gebruik maken van het formulier hiernaast. Er zal daarna op korte termijn contact met u worden opgenomen.
Contact opnemen
Over HW Makelaardij
HW Makelaardij staat garant voor een enthousiaste benadering, transparante communicatie en heldere afspraken. U kunt rekenen op onze persoonlijke aandacht en een actieve, deskundige begeleiding. Als u op zoek bent naar een makelaar die uw belangen vooropstelt, bent u bij ons aan het juiste adres. HW Makelaardij werkt snel en professioneel!
Onze sterke punten zijn:
- Dankzij onze kleinschalige portefeuille kunnen wij u volop persoonlijke aandacht en maatwerkadvies bieden.
- Wij bieden scherpe courtagetarieven en een aantrekkelijk uurtarief.
- U kunt rekenen op onze intensieve begeleiding gedurende het hele aan- en verkooptraject.
- Met onze uitgebreide (juridische) kennis houden wij u volledig geïnformeerd over alle aspecten van het aan- en verkopen van een woning.
- Wij bieden een uitgebreid scala aan diensten.
Of u nu een huis wilt kopen, verkopen of de actuele marktwaarde van uw woning wilt weten, wij nodigen u van harte uit voor een vrijblijvend gesprek bij ons op kantoor in Balgoij (Wijchen) of bij u thuis.
Nieuwste reviews
-
Saltshof 2808
Mike van HW makelaardij heeft ons top geholpen, geadviseerd en begeleid in de aankoop van onze nieuwe woning. Hij is laagdrempelig bereikbaa...
-
Watersnipstraat 86
Wij zijn ontzettend prettig geholpen en begeleid door Mike van HW Makelaardij. Hij heeft met ons door de woning gelopen, kritisch gekeken na...
-
Portugalhof 3
Hij had een persoonlijke begeleiding. Vriendelijk, correct. Je kon altijd terecht voor vragen.Alles is vlot verlopen. Uiteindelijke verkoopp...